| Telefons: | |
|---|---|
| E-pasts: | |
| www: | |
| Vieta | Ropažu novads, Sunīši |
Pārdod māju Ropažu novads Sunīši Māla iela 6
140 000.00 €
|
Zeme, m2
630
|
Stāvi ēkai
2
|
|
Platība, m2
254
|
|
|
Apkure
|
|
|
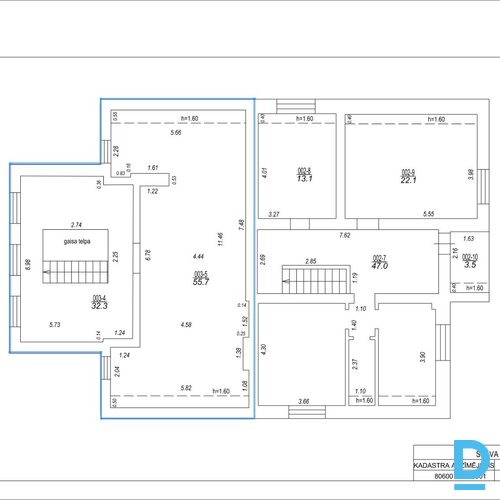
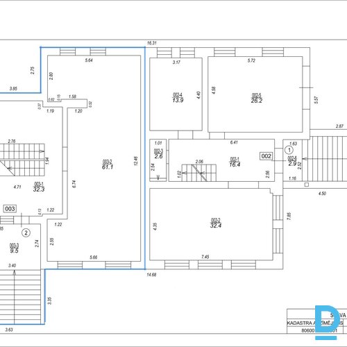
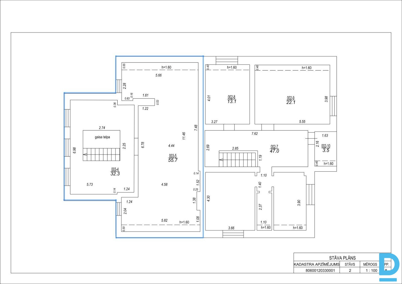
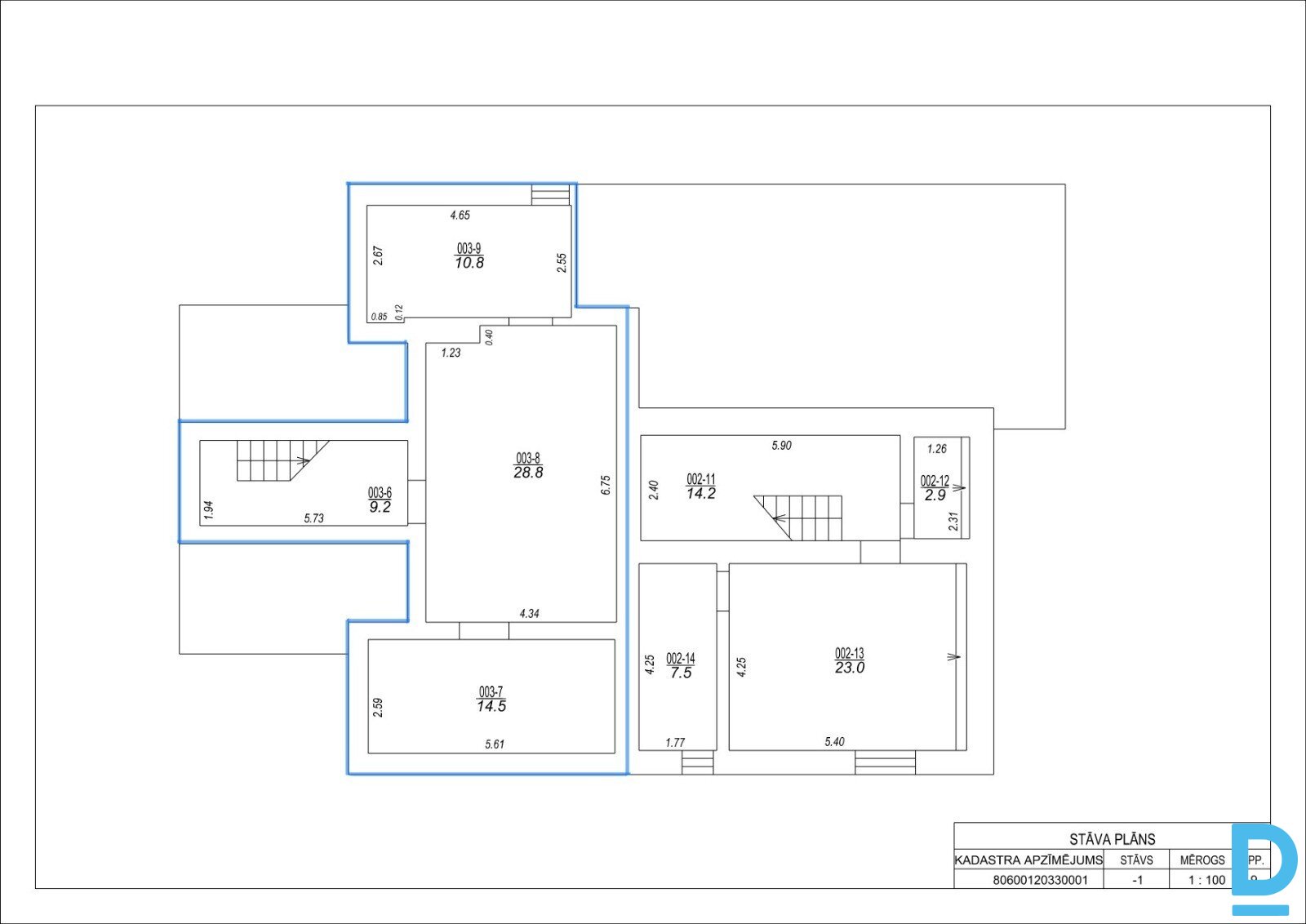
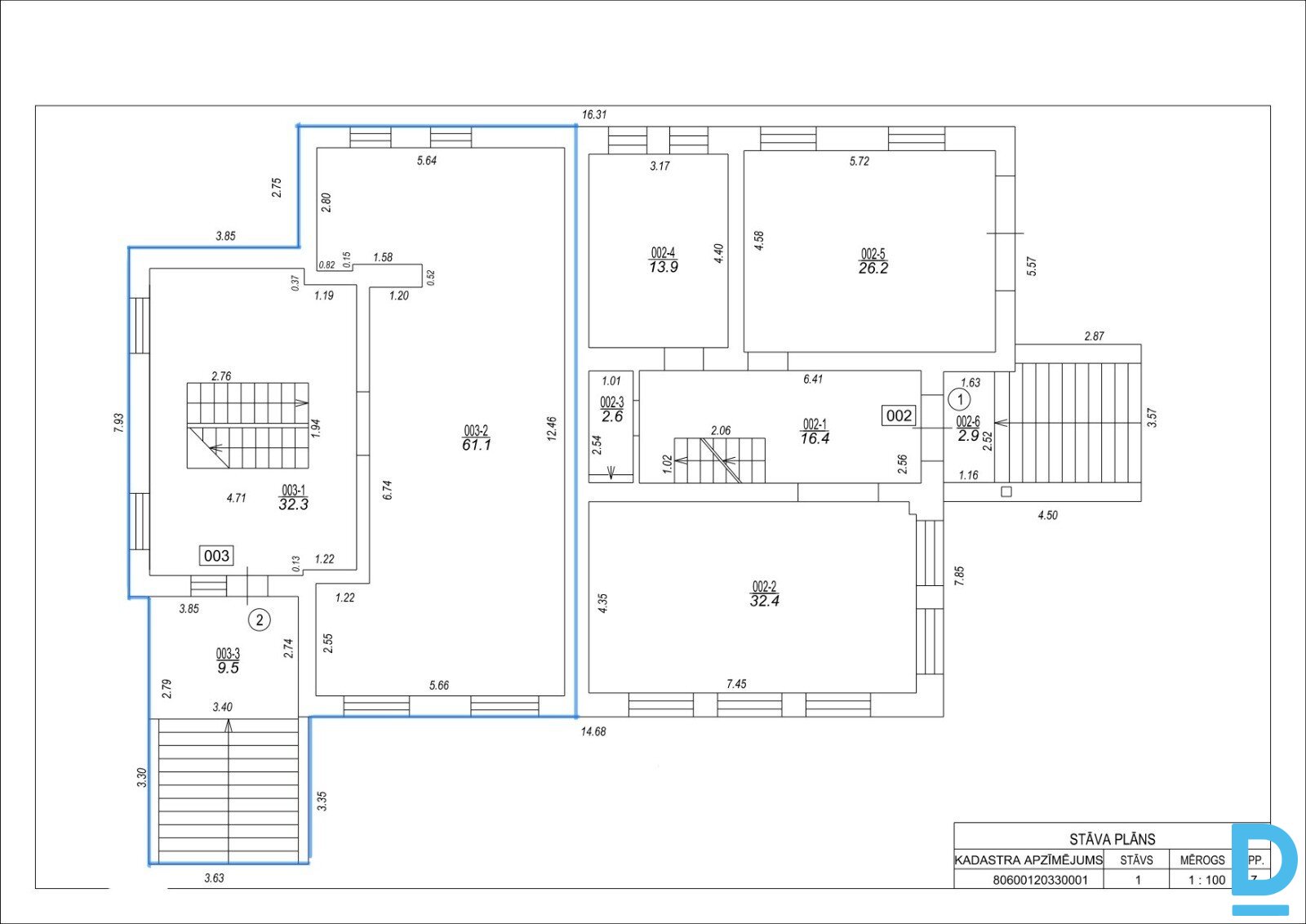
Pārdod dvīņu mājas pusi Sunīšos, Māla ielā 6. Mājas pamati no dzelzsbetona un betona blokiem, sienas - no vieglbetona blokiem. Pārsegumi no dzelzbetona paneļiem un koka sijām ar koka dēļu aizpildījumu, jumts - koka konstrukcija. Viena mājas puse ir gatava nodošanai ekspluatācijā, savukārt otra - apmesta un sagatavota iekšdarbu uzsākšanai. Kopējā dzīvojamā platība – 254,2 m2 Zemes platība: 630 m2. Plānojums (Plānā - Zils) - sagatavota starpsienu izbūvei. Komunikācijas - Apkure: Centrālā. Notekūdeņu attīrīšana: Bioloģiskā attīrīšanas iekārta. Aukstā ūdens apgāde: Vietējā, artēziskā aka. Karstā ūdens apgāde: Individuālā sistēma. Elektroapgāde: Centralizēts pieslēgums. Gāzes apgāde: Centralizēts pieslēgums. Kanalizācija: Individuālā sistēma. Tikai 100 metru attālumā atrodas sabiedriskā transporta pietura, kas nodrošina ērtu satiksmi uz Rīgu. Līdz galvaspilsētas centram ir vien 21 km. Apkārtne ir ģimenei draudzīga – tuvumā atrodas skola, bērnudārzi, bibliotēka, kā arī dažādas sporta un aktīvās atpūtas iespējas. Ciemats izvietojies gleznainā priežu mežā netālu no Sunīšu ezera, kas sniedz iespēju baudīt mierīgas pastaigas, velobraucienus un atpūtu pie ūdens. Lai iegūtu vairāk informācijas vai vienotos par apskati, lūdzu, zvaniet uz norādīto tālruni. |
|
Sludinājuma nr.: 963154
Ievietots: 25.11.2025 / 22:00
Apmeklējumu skaits: 9 Šodien: 1Pēdējās izmaiņas: 26.11.2025 / 7:37













